ALESSANDRIA - In zona semi-centrale strategica e commerciale proponiamo capannone comodamente raggiungibile, dotato di facile accesso al compendio e con ampi spazi di manovra sia antistanti, sia interni.
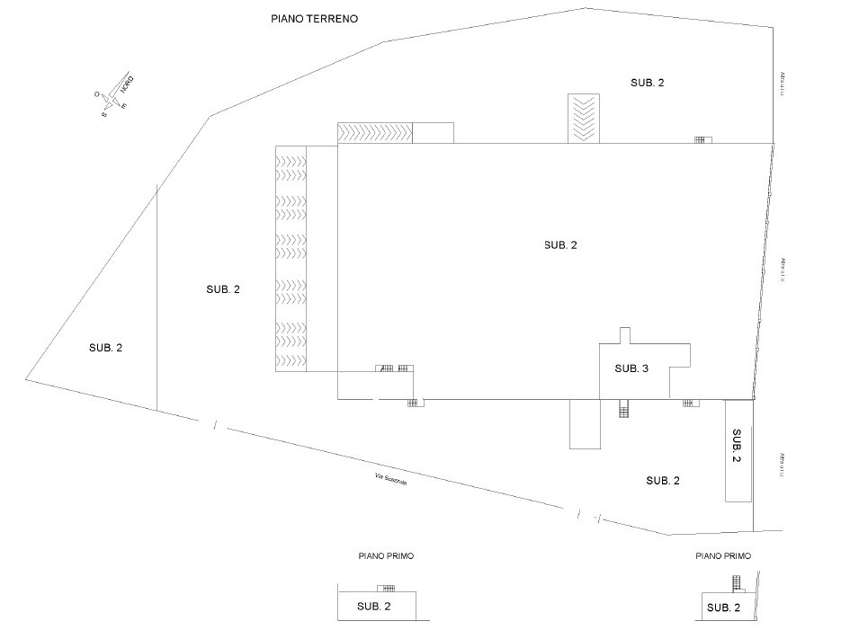
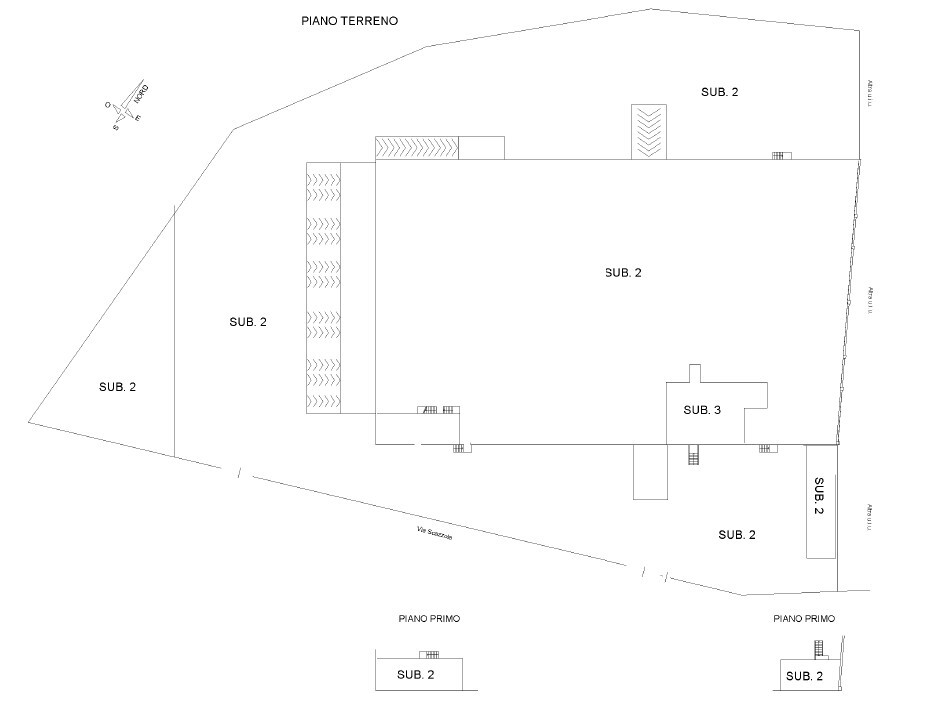
La superficie commerciale complessiva è di circa 5.115 mq, di cui circa 160 adibiti ad uffici, 3.850 circa a magazzini / depositi, oltre ad ampia area esterna pertinenziale.
Il fabbricato è stato ristrutturato e riqualificato per l'attuale utilizzo di stoccaggio e rivendita di materiali edili.
Gli interventi eseguiti riguardano le parti esterne ed interne, la copertura e l'accessibilità, che grazie ai lavori svolti lo rendono unico nel suo genere, in quanto completamente accessibile internamente da autotreni o mezzi di lavoro.
La parte coperta comprende uffici , area per esposizione, zona di accoglienza, area di stoccaggio, carico e scarico materiali, posti auto esterni.


























