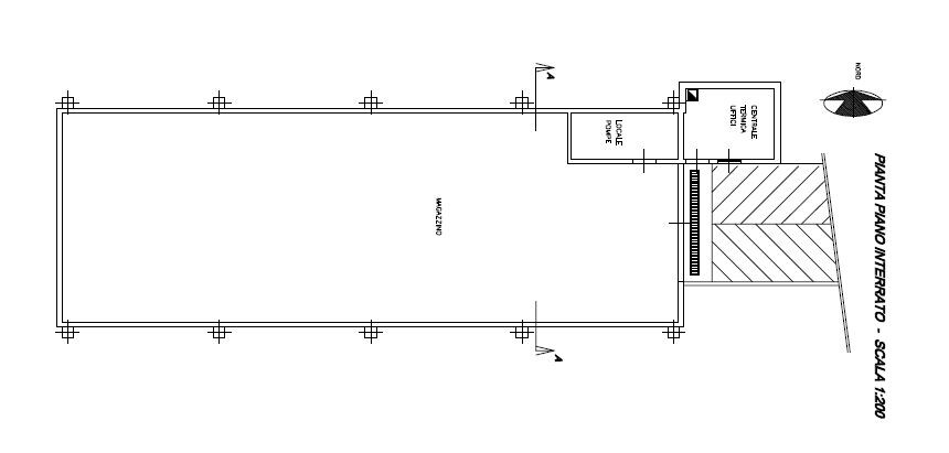
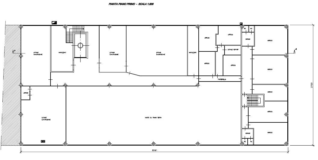
BUTTIGLIERA capannone circa mq 2700, area circa mq 1500
Gabetti corporate Torino propone in vendita un capannone nella zona industriale di Buttigliera a circa 1 km dalla tangenziale (Avigliana). Il capannone è disposto su due livelli fuori terra collegati da un ampio montacarichi. Al piano terra circa mq 1650 con con 2 passi carrai. Al piano primo circa mq 1100 Al piano -1 magazzino di circa mq 300 con accesso carraio. Il capannone è dotato di impianto di riscaldamento. Dispone di un'area esterna di circa mq 1500.






















