COMPLESSO IMMOBILIARE Via Giuseppe Garibaldi 41
Nel cuore del centro storico di Castiglione delle Stiviere, lungo la centralissima Via Giuseppe Garibaldi, proponiamo in vendita un ampio complesso immobiliare a destinazione mista, ideale per operazioni di valorizzazione e sviluppo. L'immobile, che si affaccia sia sulla via principale sia su cortili interni con porticati, si presta a molteplici possibilità di intervento grazie alla sua struttura articolata e alle diverse destinazioni d’uso presenti.
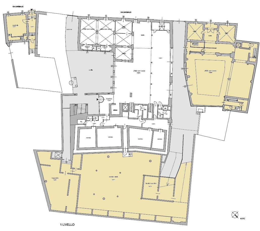
Il complesso, da ristrutturare, comprende spazi adibiti a uffici per oltre 3.200 mq, una porzione residenziale di circa 176 mq, un auditorium al grezzo di circa 634 mq, depositi per oltre 240 mq e autorimesse per circa 1.500 mq. La distribuzione degli ambienti e le dimensioni complessive rendono l’immobile particolarmente adatto a investitori o imprese interessate a realizzare un progetto di rigenerazione urbana, con la possibilità di riconvertire e valorizzare le superfici secondo diverse finalità: direzionali, abitative, commerciali o socio-culturali.
Grazie alla posizione strategica, alla vicinanza con tutti i principali servizi e alla flessibilità degli spazi, questo immobile rappresenta un’opportunità unica per chi cerca un intervento di ampia scala in una delle zone più caratteristiche della città.
La posizione è ideale anche dal punto di vista logistico e dei trasporti: il complesso è ben collegato tramite le strade statali 236 Goitese e 567 del Benaco, che garantiscono rapidi collegamenti con Mantova, Brescia e l’autostrada A4 (casello Desenzano del Garda). Nei pressi sono inoltre presenti diverse linee di autobus (2, 7A, 50 ecc.), con fermate a pochi minuti a piedi, utili per gli spostamenti pendolari verso Brescia, Desenzano del Garda e Carpenedolo.
Il quartiere si inserisce in un tessuto territoriale dinamico, caratterizzato dalla presenza di importanti poli industriali e artigianali. Oltre al distretto tessile (Golden Lady, Barilla, Sterilgarda), sono attive numerose aziende nei settori della logistica e dei trasporti che operano su scala provinciale e regionale. Questo contesto rende la zona particolarmente interessante per sviluppi a destinazione mista, sia residenziale che direzionale e terziaria, con un elevato potenziale attrattivo per uffici, magazzini o laboratori.
Le informazioni, le immagini e le planimetrie contenute nel presente annuncio hanno carattere puramente indicativo e non costituiscono elemento contrattuale.


















