SOMMA VESUVIANA (NAPOLI) - VIA ROMA
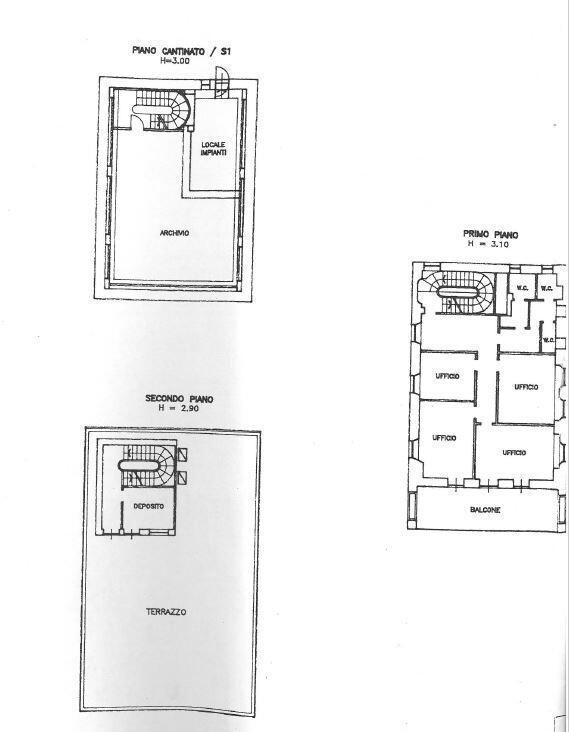
In pieno centro, su una delle principali arterie commerciali di Somma Vesuviana, proponiamo in vendita edificio su quattro livelli, ex filiale bancaria storica, composta come segue:
open space di 138 mq. ca. al piano terra, quattro uffici, tre servizi e ampia balconata terrazzata al primo piano, ampio terrazzo di 162 mq. ca con deposito di 9 mq. al secondo piano, piano cantinato di 100 mq. oltre vano tecnico di 32 mq.
L'immobile dispone di ampi spazi esterni tra cui uno spazioso porticato all'ingresso.


















































